Designing / building your own home?
Want the usual box with a hat on, or something special just for you? The “Englander Freespace Envelope”, much of the work is done for you.
You have the freedom of design to fine tune the details and live in the house you imagined.
Its unique and so are you.
Designing your own home, self building?
So many things to think of and to do; all at the same time!
Let the ‘Englander Freespace’ construction help you out in creating the home you desire. A tried and tested construction using traditional, modern and eco principles in many sizes and types to suit your needs.
Traditional values, modern thinking and eco-technology blended together for a home that suits your present life style and values.
Our designs use all the building volume, you use every bit of space you pay for. The home you wanted and money well spent too.
Loads of storage space to avoid the modern ‘cluttered chaos’ of life, a range of ‘green’ options to suit your sustainability values and freedom of design to allow you the chance to open up your imagination.
Get in touch with us
An ‘Englander Freespace’ home is unique, there won’t be another near your chosen site. The ground floor area can be fully open if required, but you can introduce walls to suit separate activities, for sound insulation etc. and privacy.
The first floor area requires no structural walls at all the inherent strength of a triangle giving you total freedom at both design, and later, on site to fine tune your ideas. Things can look a lot different whilst standing in the real building shell than they did on paper or on a screen.
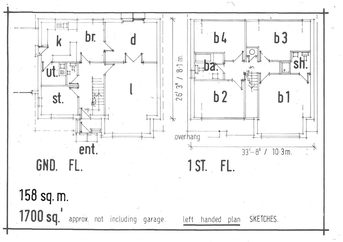
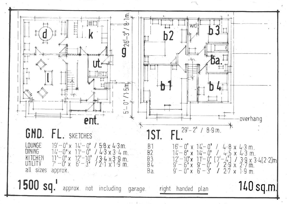
See our shell building photographs, plans and elevations for examples of sizes, layouts and materials. Doodle with our designer blanks to get a feel for trying your different ideas.
The triangle is nature’s most stable structure and for eons a symbol of solidarity and direction, pointing us upwards to the stars and to our own untapped imagination. Why not let your’s blossom on your own special project?
‘Englanders Freespace’ where you come first and have a chance to enjoy the freedom needed to achieve your dream.
Have a look at the following examples to see if we can assist































































